Дома под ключ в Жуковском
Отзывы из Яндекс Карт
4.9
92 отзывов
Дополнительные услуги 88%
2 154 оценок
Комплектации 89%
1 535 оценок
Планировки 90%
2 484 оценок
Проекты 93%
2 231 оценок
С
Дарья Рогова19.04.2025 г.
Каждый день выхожу в сад и любуюсь своим новым домом — он такой красивый и уютный, что до сих пор не верится, что это наша собственность.
Отзывы из Google Карт
4.8
56 отзывов
Дополнительные услуги 88%
2 154 оценок
Комплектации 89%
1 535 оценок
Планировки 90%
2 484 оценок
Проекты 93%
2 231 оценок
С
Азалия Кочеткова27.06.2025 г.
Огромное спасибо коллективу компании за наш уютный уголок — баня получилась просто сказочная, и каждые выходные теперь превращаются в маленький праздник для всей семьи.
Отзывы из 2гис
4.9
38 отзывов
Дополнительные услуги 88%
2 154 оценок
Комплектации 89%
1 535 оценок
Планировки 90%
2 484 оценок
Проекты 93%
2 231 оценок
С
Вася В.09.02.2025 г.
Я ценю время и качество, поэтому выбрал эту компанию и не ошибся — строители работали слаженно и не затягивали сроки, а прораб регулярно информировал о ходе работ.


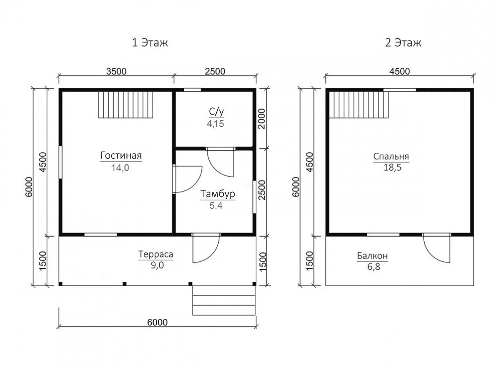
Проект №10 Дом с балконом и террасой 6х6

каркас из строганой доски
Создайте свой план для этого проекта
и отправьте его нам на расчет в один клик.
Каркасный дом (150 мм) 6х6 Толщина утепления 150 мм 1560800 Заказать
Каркасный дом (200 мм) 6х6 Толщина утепления 200 мм 1710800 Заказать

Чтобы получить личную планировку, пользуйтесь нашим планировщиком.

С помощью планировщика вы сможете сделать планы, эскизы, чертежи, схемы уникального дома с мансардой, эркером, с одной, двумя или тремя спальнями. В итоге получится свой проект с планировкой, который стопроцентно отвечает вашим требованиям.

Вы сможете выбрать тип кровли: двускатная, четырехскатная и вальмовая. Двухскатную крышу считают самой популярной в небольших домах.

Самые востребованные размеры: мини - до 50 м2 (в основном, 1 этажные дома); компактные - от 70 до 100 м2 (обычно двухэтажные); большие - начиная от 150м2 и больше.

Строим дуплексы - большие надежные каркасные дома с 2-мя входами на несколько семей. Такие дома предполагаются для нескольких хозяев, они разделяются на две половины, для каждой половины - отдельный вход.


Наши работы

Перейти в галерею


Комплектация

Площадь застройки: 36 м2
Длина: 6 м
Ширина: 6 м
Общая площадь: 40 м2
Исполнение Под ключ (с отделкой)
Фундамент Свайно-винтовой или ж/б сваи (рассчитываются отдельно).
Гидроизоляция фундамента Рубероид в два слоя.
Основание (обвязка) Из обрезного бруса 150х150 мм. 150х200 мм. согласно выбранной толщине утепления. Торцевая доска строганая 45х145/45х195+/-5 мм. согласно выбранной толщине утепления. Обработка антисептиком.
Цокольное перекрытие Строганая доска камерной сушки 45х145/45х195+/-5 мм. с шагом 590 мм. Обработка антисептиком.
Пол черновой Обрезная доска камерной сушки 20х100 мм.
Влаго-ветрозащита чернового пола Мембрана Ондутис А100.
Внешние стены Стойки каркаса из строганой доски камерной сушки 45х145/45х195+/-5 мм. с шагом 590 мм. Верхняя двойная и нижняя обвязки из строганой доски камерной сушки 45х145/45х195+/-5 мм. Разгрузочный ригель из строганой доски 45х145+/-5 мм. Укосины из строганой доски 20х95 мм.
Перегородки Стойки каркаса из строганой доски камерной сушки 45х95+/-5 мм. с шагом 590 мм. Верхняя двойная и нижняя обвязки из строганой доски 45х95+/-5 мм. Разгрузочный ригель из строганой доски камерной сушки 45х145+/-5 мм. Укосины из строганой доски камерной сушки 20х95 мм.
Сборка каркаса На гвозди.
Высота от пола до потолка Дом одноэтажный: 2,5 м. Дом с мансардой: 1-ый этаж- 2,5 м.
2-ой этаж (мансарда)- 2,3 м.
Дом в полтора и два этажа:
1-ый этаж 2,5 м.
2-ой этаж 2,4 м. в полутораэтажном доме
2,5 м. в двухэтажном доме.
Внешняя отделка стен Имитация бруса камерной сушки, сорт АВ, толщиной 17 мм. Монтаж через строганый брусок камерной сушки 45х45+/-5 мм. (вентилируемый фасад). Влаго-ветрозащитная мембрана- Ондутис А100.
Внутренняя отделка стен, перегородок Евровагонка камерной сушки, сорт АВ, толщиной 12,5 мм. по строганой рейке 20х40+/-5 мм. либо ГКЛ 12,5 мм.
Отделка потолка Евровагонка камерной сушки, сорт АВ толщиной, 12,5 мм. по строганой рейке 20х40+/-5 мм. либо ГКЛ 12,5 мм.
Пол чистовой Шпунтованная доска камерной сушки толщиной 35-36 мм. сорт АВ. по строганой рейке 20х40+/-5 мм. либо шпунтованная ДСП 16 мм. по разряженной обрешётке из строганой доски камерной сушки 20х95+/-5 мм.
Утепление (пол, потолок) Минеральная вата Knauf 150/200 мм. согласно выбранной толщине утепления.
Утепление стен Плитный утеплитель Rockwool, толщиной 150/200 мм. согласно выбранной толщине утепления.
Звукоизоляция перегородок Плитный утеплитель Rockwool, толщиной 100 мм.
Пароизоляция (стены, перегородки, пол, потолок) Плёнка Ондутис R70. Дополнительная герметизация нахлёстов/примыканий пароизоляционной плёнки клейкой лентой Delta.
Окна Двухкамерные стеклопакеты ПВХ белого цвета, профиль 60 мм. В комплекте: отливы, подоконники, москитные сетки.
Двери Входная- металлическая, утеплённая (Россия). Межкомнатные- филёнчатые.
Наличники на окна и двери Наличник деревянный, строганый, камерной сушки 70-90 мм. с двух сторон.
Лестница (при наличии второго этажа) Деревянная, одно или двухмаршевая. Перила- заводские резные, балясины- заводские точеные, устанавливаются стартовые точёные столбы. Ступени 40х200 мм. Тетива лестницы- 90х140 мм.
Крыша Двускатная, ломаная или вальмовая в соответствии с проектом.
Стропильная система Выполнена из строганой доски камерной сушки 45х145/45х195+/-5 мм. Шаг установки стропил 590 мм.
Обрешётка Выполняется из строганой доски камерной сушки толщиной 20х95+/-5 мм. Шаг крепления обрешетки 350 мм. Контробрешётка выполняется из строганого бруска камерной сушки 45х45+/-5 мм. Крепится по стропилам (вентиляционный зазор).
Подкровельная мембрана Ондутис А100
Кровельное покрытие (на выбор) Металлочерепица 0,45 мм. Цвет на выбор.
Фронтоны (при наличии) Каркас из строганой доски камерной сушки 45х145/45х195+/-5 мм. Обшиваются имитацией бруса камерной сушки, сорт АВ, толщиной 17 мм. Монтаж через строганый брусок камерной сушки 45х45+/-5 мм. (вентилируемый фасад). Влаго-ветрозащитная мембрана- Ондутис А100. Монтаж вентиляционных решёток.
Свесы крыши Ширина 400 мм. Подшиваются вагонкой камерной сушки, сорт АВ.
Терраса/балкон (при наличии) Устанавливаются опорные столбы из строганного бруса камерной сушки 140х140 мм.
Отделка потолка террасы/балкона Евровагонка камерной сушки толщиной 12,5 мм. сорт АВ.
Пол террасы/балкона Шпунтованная доска камерной сушки толщиной 35-36 мм. сорт АВ.
Ограждение террасы/балкона Перила- строганая доска. Балясины- точеные, фигурные. Либо ограждение в скандинавском стиле. Устанавливаются ступени у входа.
Допуск на геометрические параметры Составляет +/- 50 мм по длине с каждой стороны.
Допускается стыковка имитации бруса, вагонки и половой доски По всему периметру стен дома (если ширина и длина дома более 6,0 метров). Вагонки и доски пола в каждой отдельной комнате.
Допуски по имитации бруса, вагонке, доске +/- 5 мм.
В стоимость включена Доставка комплекта материала в радиусе 500 км. от г. Пестова Новгородской области и сборка дома на вашем участке.
Гарантия 5 лет.
Бытовка строительная 2,0х3,0 м. каркасно-щитовая. Стоимость 23000 руб. Остаётся на участке Заказчика.
Туалет 1,0х1,0 м. каркасно-щитовой. Стоимость 12000 руб. Остаётся на участке Заказчика.
Генератор Стоимость аренды на весь срок строительства 15000 руб. ГСМ за счёт Заказчика.

Постройка дома осуществляется в нескольких вариантах: под усадку, когда дом отстаивается в течение некоторого времени и под ключ.

Зимой специалисты рекомендуют строить дом в холодную погоду, чтобы каркас не промок, в летний сезон - не в дождливую.

Оптимальными для дачи или сада считают домики на винтовых сваях, на нашем сайте имеются одноэтажные и полуторатажные варианты.

Если вы собираетесь проживать постоянно, рекомендуем надежные и теплые дома на ленточных и плитных фундаментах.

Существует 2 размера утепления: 150 мм и 200 мм. Каркасные дома с толщиной стен двести миллиметров получаются теплее, но стоят дороже.

Дополнительные услуги


Каркасник балконом и маленькой террасой, по плану 10 полутораэтажный с теплоизолированной двускатной разновидностью крыши, выделяется экологической чистотой, благодаря использованию стружечных плит, ваты минеральной и базальтовой, что обеспечивает первоклассную термоизоляцию, идеальный микроклимат в доме. Габариты постройки составляют 6х6 м., суммарная жилплощадь - 40 кв.м.. Наша компания в самые короткие сроки выстроит дом из каркаса по индивидуальному или типовому чертежу в Жуковском в любое время года и на любом типе грунта.

Популярные проекты


Одноэтажные дома из бруса Каркасные дома 9х9 Бани из бруса 7х8
хит продаж
Тип: с террасой
Общая площадь: 2
1901300
от 1810800
хит продаж
Тип: с балконом, с маленькой террасой
Общая площадь: 2
1565300
от 1490800
хит продаж
Тип:
Общая площадь: 2
2825300
от 2690800
Дома из бруса

Заказать или задать вопрос



Заказать или задать вопрос

Заказать звонок